Máte dotaz? Volejte na +420 601 545 971 nebo pište na 

Váš dopytový formulár je prázdny
3 "nerezový 3" guľový kohút s ISO doskou FMZK3ISO 3

3 "nerezový 3" guľový kohút s ISO doskou FMZK3ISO 3

3 "nerezový 3" guľový kohút s ISO doskou FMZK3ISO 3
3 "nerezový 3" guľový kohút s ISO doskou FMZK3ISO 3
3 "nerezový 3" guľový kohút s ISO doskou FMZK3ISO 3
Predajná cena bez DPH802,51 €
Poskytujeme individuální a množstvetní slevy.
Poslať otázku
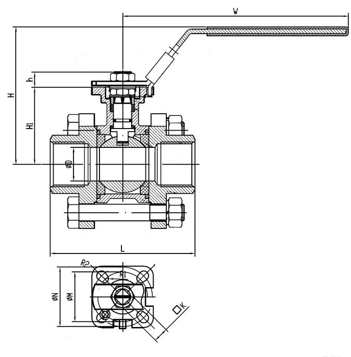
Vlákno3"
D76 mm
H.160 mm
H1114 mm
h18,5 mm
M.70 mm
L.186 mm
N102 mm
R14,5 mm
R25,5 mm
K.17 mm
Krútiaci moment ovládania50 Nm
v233 mm

Ďalšie varianty tohto produktu:

Sortiment

ZAVRIEŤ
Vyplňte prosím meno a priezvisko.

Vyplňte prosím e-mail.

Vyplňte prosím otázku.

Copyright © 2018 - 2025 pneumatsystem.sk Všetky práva vyhradené
Nastavení cookie